Montazne kuce : Montažne kuće : montazni objekti, lokali i garaze. Izrada kuća pravljenje kuća gradnja tvrda gradnja laka gradnja montaža .Montaza jeftine kuće jeftine kuce prodajem kucu prodajem plac oglasi kuce oglasi nekretnine stambeni krediti montazne kuce beograd nis novi sad srbija serbia vikendice izgradnja apartmani poslovni i turistički objekti nekretnine

Pocetna strana POČETNA KONTAKT www.premiumhouse.eu
SRB SLO HRV FRA ITA ENG
pretraga facebook/kucamont g+
niskoenergetske kuce
TRAJNOST I GARANCIJE TEHNIČKI OPIS NISKOENERGETSKE KUĆE KAKO DO KUĆE ? CENOVNIK GALERIJA

PROJEKTI KUĆA

BUNGALOV
DOMO
HARMONIA
TREND
CITY
MODERN
COMFORT
DUPLEX/TRIPLEX
ELEGANT
KLASIK
KOMPAKT
PREMIER
GARAŽE
LOKALI I POSLOVNI PROSTOR
IVANJICA PREMIUM RIO

MONTAŽNA KUĆA TIP 66

 

Povrsina kuce POVRŠINA
Neto : 64.60 m2

 
Vreme montaze kuce VREME MONTAŽE KUĆE
8do 11dana
CENA IZGRAĐENE KUĆE
Osnovni standard gradnje
energetski razred C
od 0,00 Eura
Termo standard gradnje
energetski razred A
od 96.532,00 Eura
TermoXXL standard gradnje
energetski razred A+
od 100.919,00 Eura

Ova kuća trenutno nije u ponudi

montazne kuce Cene su izražene u Evrima i važe za teritoriju Srbije.
montazne kuce Sve kuće možete kupiti preko stambenih kredita.
montazne kuce Cene su obračunate sa PVC stolarijom bele boje i četvrtastog oblika. Klizna vrata i krovni prozori se posebno doplaćuju.
montazne kuce Svaki plan kuće se može modifikovati i izmeniti prema želji kupca.
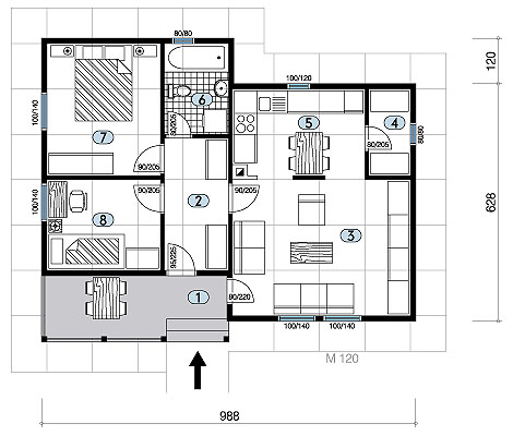
montazne kuce Na slici je prikazana ilustracija mogućeg izgleda objekta.

Spoljni izgled montazne kuce

OSNOVA PRIZEMLJA
Osnova prizemlja
niskoenergetske kuce
Kuća Mont Srbija
Tošin Bunar 167A
Beograd
tel 063 / 852 - 60 - 36
tel 062 / 877 - 44 - 54
Zastupništvo za Sloveniju
Forus d.o.o.
Kolišla ul. 4
1230 Domžale
+386 (0)41 941 640
SBL nepremičnine d.o.o.
Sveča 12a
2322 Majšperk
+386(0)51 368 739
Zastupništvo za Austriju
NetControl Elektro & Sicherheitstechnik KG
Eichbergstrasse 10/1/6
A-2371 Hinterbrühl
Zastupništvo za Francusku
STECA Innovation
22, rue Maryse Bastie
St-Etienne-de-St-Geoirs
+33 (0)4 76 55 83 38
Zastupništvo za Kipar
Hypercon My Energy House Ltd
Demokratias 60, 2034 Strovolos
1660 Nicosia, Cyprus
info@myenergyhouse.com.cy
niskoenergetske kuce